Repurposing - NUC Culinary Lab

Location: Cutler Bay, Florida

Year: 2020-2024

Budget: $1.5 Million

Sq. Ft.: 3,055

Phases Involved: Pre-Design/Programming through Project Closeout.

This project is part of the National University College (NUC) network at its South Miami Campus. Located within Southland Mall, it is the primary hub for their culinary programs in the region. The campus is part of a massive $1.5 billion redevelopment of the Southland Mall into a mixed-use “city-center” called SouthPlace City Center.

The campus occupies approximately 25,000 square feet and offers programs in culinary arts, healthcare, and construction trades.

Architectural Design - Project Architect

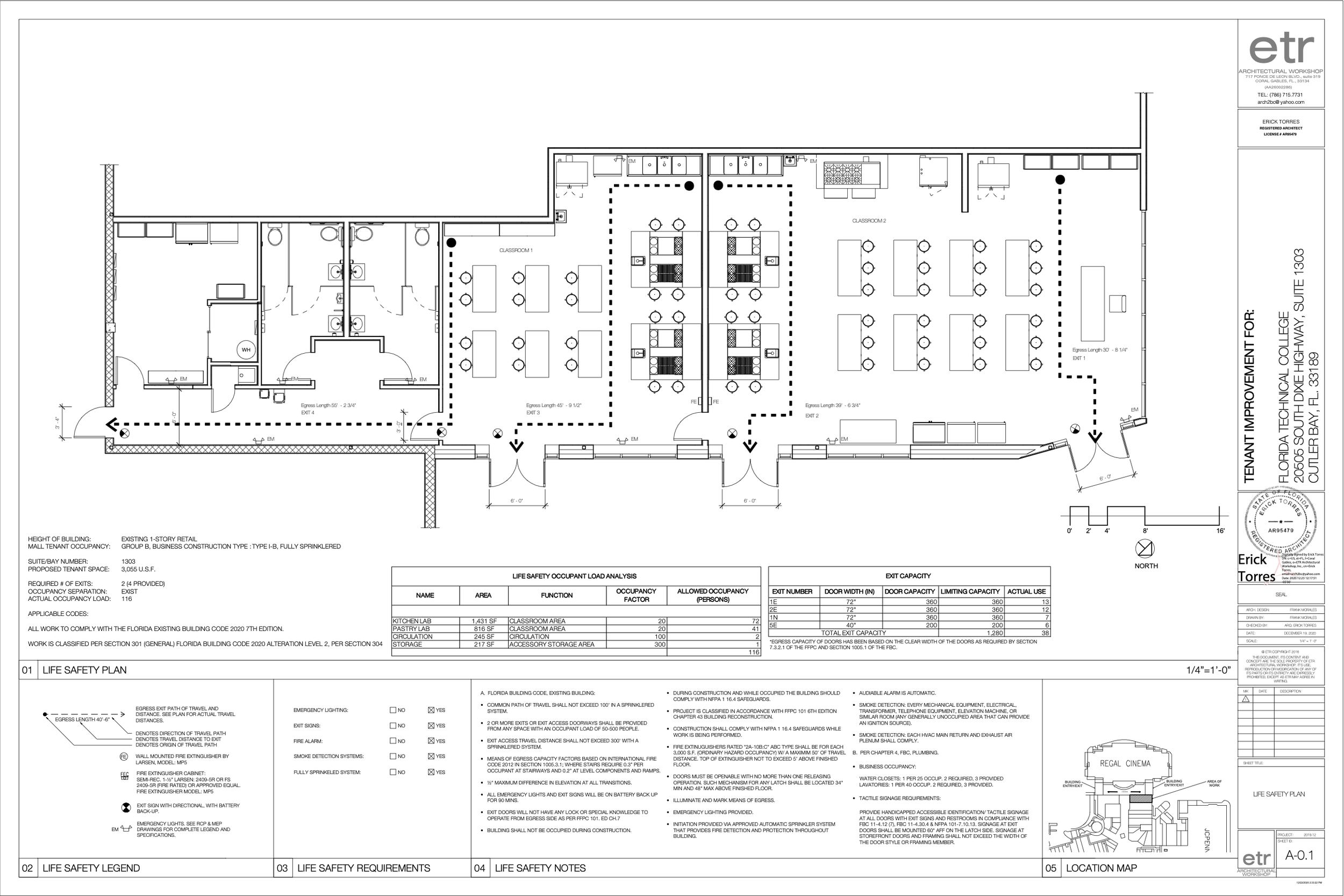
Life safety and occupant load analysis

Integration of the FBC (Florida Building Code) requirements for the implementation of the program.

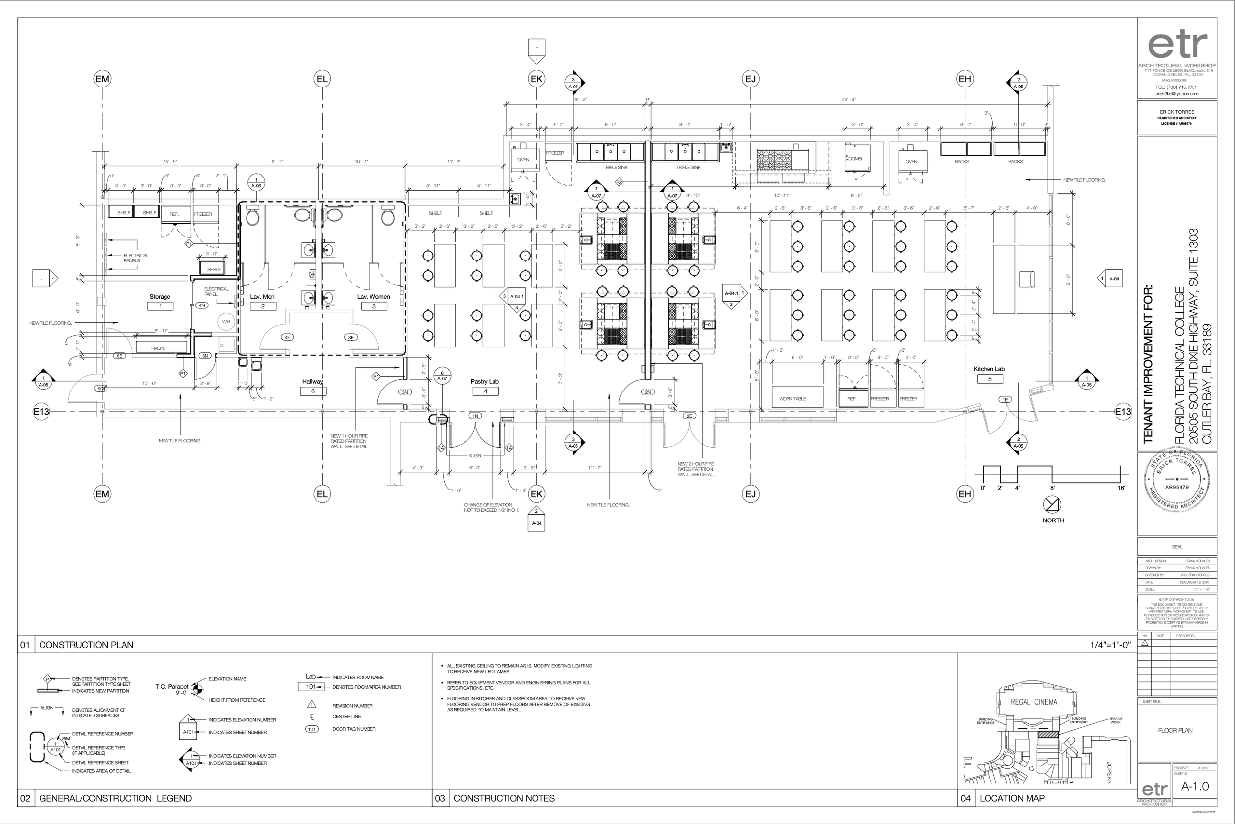
The client requested spatial versatility of a hands-on laboratory while also accommodation for traditional learning stations. We provided workstation for regular lectures and individual work areas and a fully equipped practice kitchen cooking station.

Spatial design and utilization methods

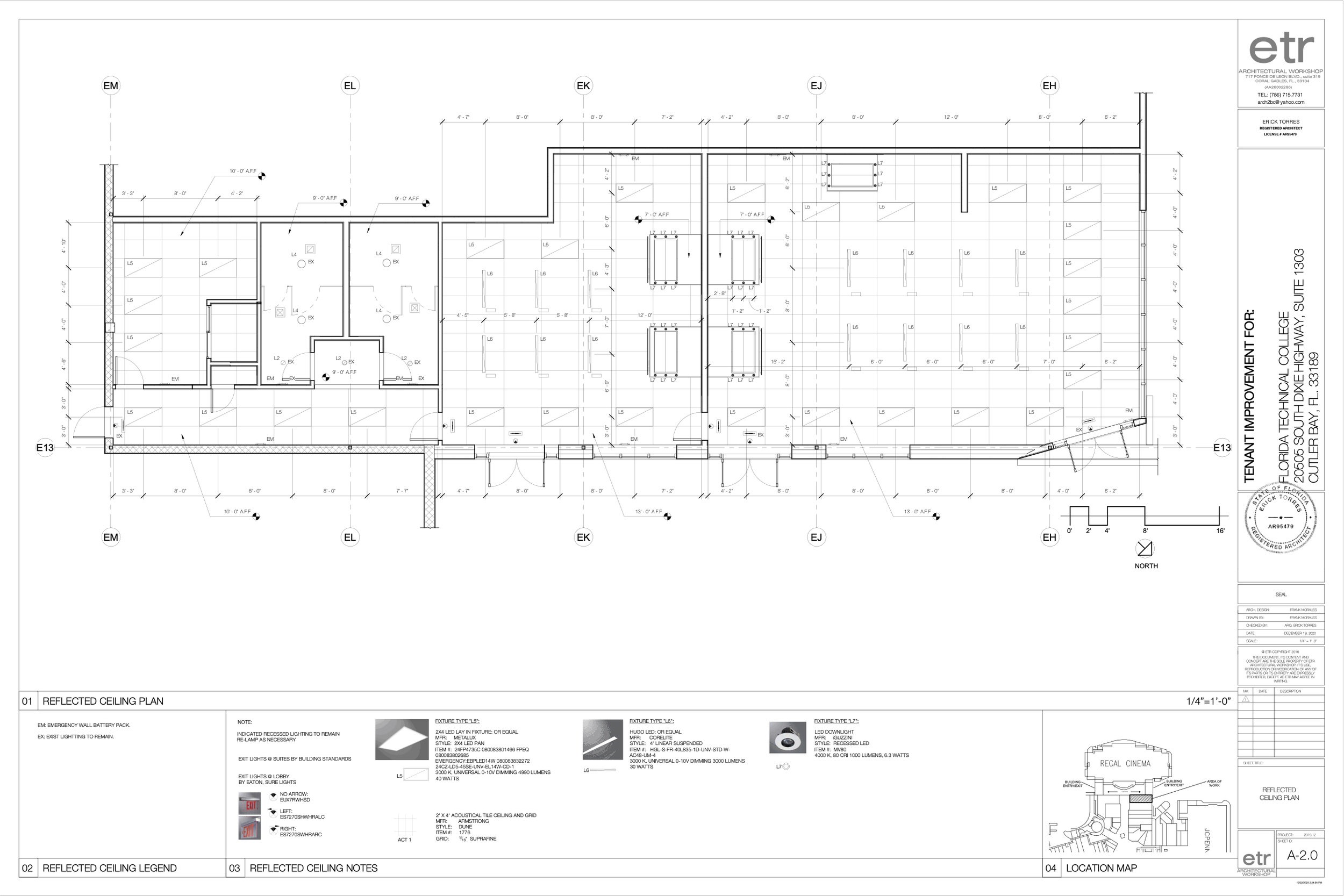
The under-ceiling space was utilized as a surface to attach not only the illumination, but the drop-down extensions cords for electrical tools attachment. Serves as an anchor for the equipment and includes acoustic comfort considerations.

RCP: The 5th wall

Making sure the spaces followed federal guidelines for accessibility and accommodation of students and staff.

ADA compliance

Project Details:

Renovate an existing 3,055 sq. ft. commercial suite to create a modern, flexible classrooms and workspaces that supports hybrid work, collaboration, and student and staff well-being. The project includes interior reconfiguration, MEP upgrades, finishes, commercial kitchen equipment procurement, and minor exterior improvements to the main entrance and signage.

Objectives

  • Transform dated commercial restaurant layout into flexible zones for classroom, work, collaboration, and live interaction.

  • Improve indoor environmental quality (lighting, acoustics, thermal comfort, and air quality) while accommodating the technical requirements a full commercial kitchen stations.

  • Increase space efficiency and accommodate 25–53 students and staff with adaptable workstation options.

  • Provide accessible, code-compliant facilities and comply with ADA standards.

  • Integrate sustainable materials and energy-efficient systems where feasible.

Scope of Work

  1. Space Planning and Design

    • Conduct programming sessions to confirm user needs and adjacency priorities.

    • Produce concept design, schematic layouts, and final construction documents.

    • Define furniture plan and finish schedules for all areas.

  2. Demolition and Interior Construction

    • Selective demolition of interior partitions, ceilings, and finishes as required.

    • Construct new partitions, storage room, and classroom areas.

    • Install new accessible restrooms modifications and equipment upgrade.

  3. Mechanical, Electrical, and Plumbing (MEP)

    • Upgrade HVAC system to improve ventilation and thermal comfort; implement localized controls for zones.

    • Replace lighting with LED fixtures; integrate layered lighting (ambient, task, accent).

    • Provide power and data infrastructure to support flexible layouts and collaboration tech integration.

    • Plumbing upgrades for kitchenette and restroom modifications.

    • Gas lines modification for equipment connections and regulation.

  4. Acoustics and AV

    • Implement acoustic treatments in open-plan areas and conference rooms to control reverberation and support speech privacy.

    • Furnish connections for AV systems (display, conferencing camera, wireless presentation) per classroom space.

    • Provide soft-touch collaboration tools (whiteboards, writable glass) in team spaces.

  5. Finishes and Furniture

    • Specify durable, low-VOC finishes for floors, walls, ceilings, and millwork.

    • Procure modular workstations, adjustable-height desks, collaborative seating, and storage solutions.

    • Provide wayfinding signage and branded elements at reception and main circulation.

  6. Exterior and Entry Improvements

    • Refresh main entrance facade and install updated signage and lighting.

    • Improve accessibility at the main entry as required.

Deliverables

  • Existing conditions survey and code review.

  • Schematic design drawings and 3D renderings.

  • Construction documents (plans, sections, details, specifications).

  • Permitting submittals and coordination.

  • Procurement lists and furniture specifications.

  • Commissioning report for upgraded MEP systems.

  • As-built drawings and operation & maintenance manuals.

Schedule*

  • Design Phase: 8–10 weeks (programming through construction documents).

  • Permitting: 6–10 weeks (concurrent with late design stage where possible).

  • Construction: 10–12 weeks (dependent on permit timelines and site conditions).

  • FF&E installation and commissioning: 2–3 weeks.

  • Total estimated project duration: 22–29 weeks.

*Note: This original schedule was modified due to the COVID-19 impact on project delivery time schedule.

Budget Estimate

  • Preliminary construction estimate: $300–$375 per sq. ft. (includes demolition, build-out, MEP upgrades, finishes, and general conditions).

  • Furniture, fixtures, and equipment (FF&E): $120–$160 per sq. ft.

  • Owner contingency and soft costs (design fees, permits, testing, commissioning): 20–30% of hard costs.

Assumptions and Constraints

  • Work occurs within an occupied building; phased construction and noise mitigation measures are required. Coordination with mall management.

  • Structural work is limited; no major load-bearing modifications assumed.

  • Existing utility capacities are assumed adequate; significant upgrades would adjust schedule and budget.

  • Client to provide finalized branding assets for signage and reception graphics.

Success Criteria

  • Completion on schedule and within approved budget range.

  • Meeting occupancy and performance targets for workstations and classroom spaces.

  • Achieving improved indoor environmental quality metrics (lighting levels, acoustic performance, thermal comfort).

  • Positive user feedback gathered during post-occupancy evaluation (within 3 months of move-in).

Project Management - Construction Administration

We helped convert and guide the project from plan design to a physical manifestation. Employing team collaboration and coordination, while adhering to QA and QC.

The team navigated through the COVID-19 virus outbreak shutdown. Initially putting the project on an indefinite hold due to unforeseen circumstances, to the re-starting and adjusting to the new work policies health guidelines.

It was a successful project delivery that the client was very satisfied with and showedcase our resilience in being able to handle a project from start to finish.

02

01

03

01 Assisting GC and the kitchen hood manufacturer coordinate on-site installation and parts fabrication.

02 Confirming electrical outlets and specialty equipment outlets placement based on design specs.

03 Kitchen equipment and supporting services installation.

Review of general notes and specifications outlines for general contractor and sub-contractors to adhere to for successful execution and reduction in errors.