Turning Key - Interior Remodel

Location: Miami, Florida

Year: 2022-2023

Budget: $150,000

Sq. Ft.: 1,824

Phases Involved: Schematic Design through Construction Documents.

The project modernizes an 1980s kitchen and reconfigures adjacent service spaces to create a more functional, contemporary home.

Overall the remodel balances modern aesthetics with practical upgrades: improved circulation, increased storage, and materials selected for durability and low maintenance. The result is a cohesive, contemporary interior that respects the home’s original proportions while meeting current lifestyle needs.

Architectural Design - Project Architect

Project Description and Code Compliance

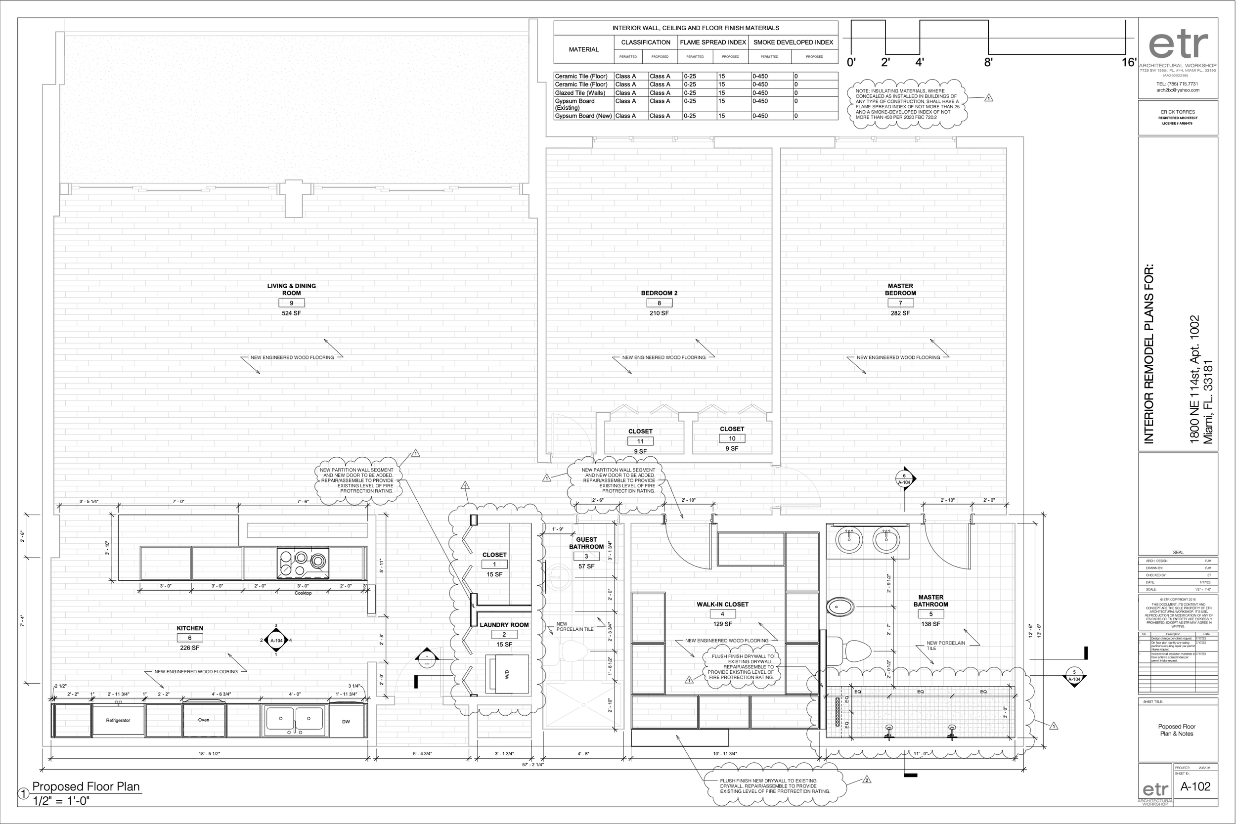
Property measurements and repair indications to the facade. Proposed window upgrades for HZHV impact resistant zone.

Selective removal of equipment and partitions within the required scope of work.

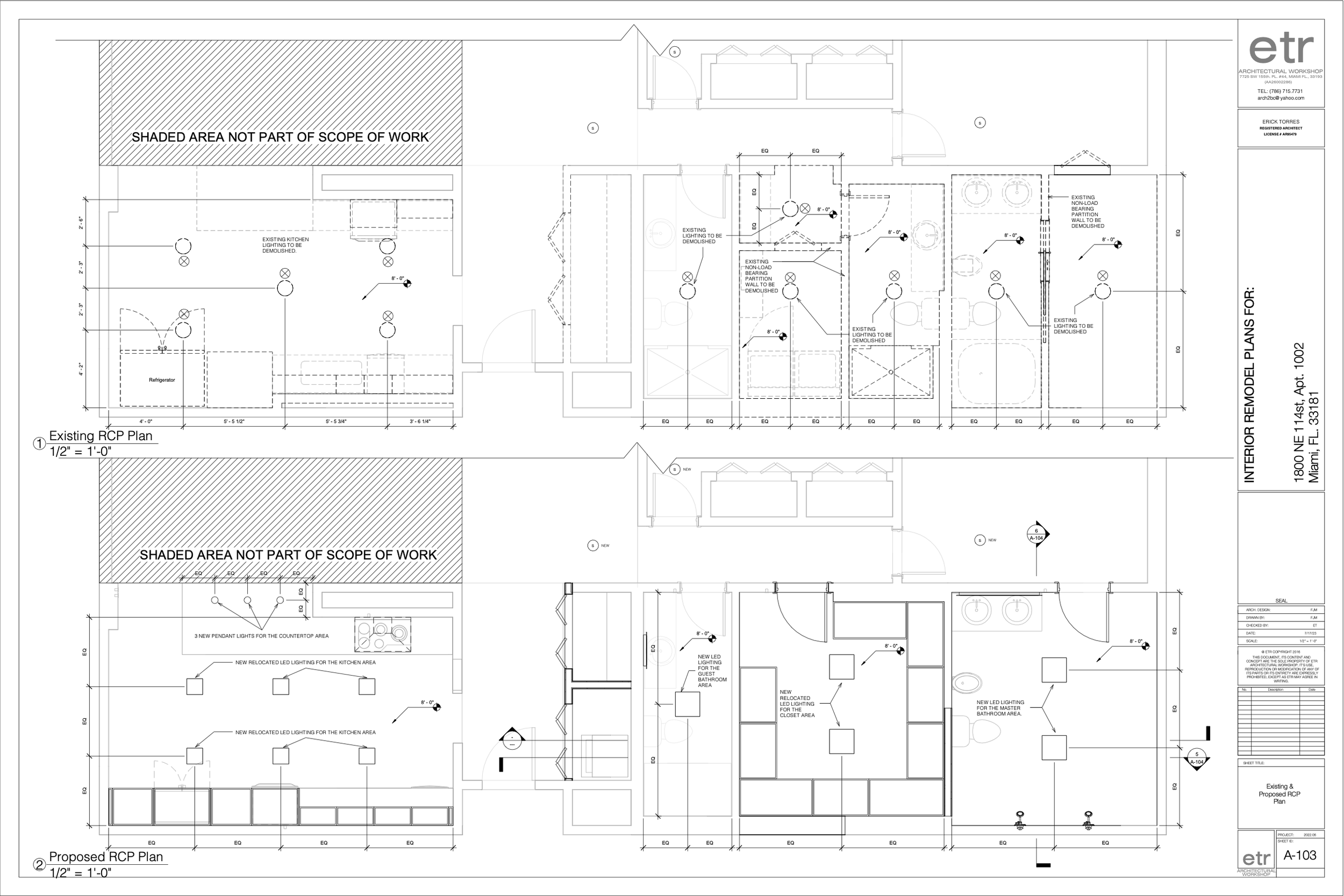
Demolition Plan

Proposal Plan

New spatial distribution and equipment upgrade.

Removal of existing luminaire and implementation of new lighting fixtures.

RCP Plan

Project Details:

Modernization of an 1980s-era kitchen and reconfiguration of adjacent service spaces to improve functionality, storage, and everyday circulation while maintaining the home’s original proportions. Work includes selective demolition, new kitchen cabinetry and finishes, integrated appliances, upgraded lighting, new continuous flooring, relocation of the laundry to a discreet entry-adjacent closet, expansion of the main bathroom to include upgraded bathing components and fixtures, and construction of a new custom walk-in closet for the primary bedroom..

Objectives

Design + Function

  • Update the kitchen with a clean, neutral palette and streamlined detailing to create a contemporary, cohesive interior.

  • Improve workflow and social interaction by refining kitchen layout, appliance integration, and lighting layers.

  • Reclaim and reallocate the former laundry/service footprint to expand the main bathroom and add a dedicated walk-in closet.

Performance + Practical Upgrades

  • Increase storage capacity and organization through efficient cabinetry planning and custom closet systems.

  • Select durable, low-maintenance materials that support long-term use and easy upkeep.

  • Upgrade key systems serving the remodeled areas (electrical, lighting controls, plumbing fixtures) in compliance with applicable codes.

Scope of Work

  1. Pre-construction and Existing Conditions

    • Field verification and documentation of existing kitchen/service layout, key dimensions, and utility locations.

    • Confirm constraints (bearing walls, plumbing stack locations, electrical panel capacity, HVAC supply/return routing).

    • Preliminary code review for scope triggers (electrical upgrades, ventilation requirements, plumbing fixture changes).

  2. Design, Selective Demolition and Remodel

    • Conduct programming sessions to confirm homeowner priorities (room layouts, storage needs, lifestyle patterns, future flexibility).

    • Produce final construction documents.

    • Define finish schedules, cabinetry layouts, plumbing fixture selections, lighting plan, and appliance package.

    • Remove existing kitchen finishes and components as required (cabinetry, countertops, backsplash, select soffits/trim).

    • Selective removal in former laundry/service area to support new bath expansion and closet construction.

    • Substrate prep for new flooring continuity and wall/ceiling refinishing.

    • Streamlined, modern cabinetry with integrated panels where applicable; optimized storage (drawers, pull-outs, trash/recycling, pantry solutions).

    • Quartz countertops with clean profiles; coordinating backsplash strategy emphasizing minimal joints and easy maintenance.

    • Integrated appliance package to reduce visual clutter and improve continuity.

    • Layered lighting design including recessed ambient fixtures and task pendants at key work zones; updated switching and controls as appropriate.

    • Wide-plank wood-look flooring installed to unify the plan and visually expand the main living area.

    • Create a discreet laundry closet near the entry (stacked or compact configuration as required), including venting/condensate strategy, water supply, drain connections, and sound/door detailing for concealment.

    • Reallocate the former laundry footprint to support the expanded main bathroom and a new walk-in closet for the primary bedroom.

    • Expand bathroom footprint to accommodate:

      • Freestanding soaking tub

      • Frameless glass shower with minimal tile joints and simplified detailing

      • Upgraded plumbing fixtures with contemporary finishes

    • Update wet-area waterproofing, ventilation, lighting, and GFCI protection to current standards.

    • Tile layout and transitions for a refined, low-maintenance finish approach.

    • New walk-in closet with custom built-ins:

      • Shelving zones, hanging zones (short/long), and dedicated shoe storage

      • Optional drawer towers and accessory storage based on program

    • Integrated lighting strategy (door-activated, recessed, or linear) and durable interior finishes.

  3. Mechanical, Electrical, Plumbing (MEP)

    • New circuits as needed for kitchen loads and laundry; under-cabinet/task lighting provisions; updated receptacles to code; dedicated appliance requirements.

    • Reroute supply/drain lines for relocated laundry and upgraded bath fixtures; confirm shutoff accessibility and pressure requirements.

    • Kitchen hood/venting strategy and bath exhaust sizing/duct routing to support indoor air quality.

  4. Inspections and Closeout

    • Coordinate required inspections (electrical, plumbing, mechanical as applicable) and final approvals.

    • Final punch list, QA/QC walkthrough, and closeout documentation for installed fixtures/equipment where available.

Deliverables

  • Existing conditions verification + utility coordination plan (as needed for design decisions).

  • Space planning layouts for kitchen/service reconfiguration and final selected plan.

  • Kitchen drawings: floor plan, cabinetry elevations, key details, and finish schedule.

  • Lighting plan and reflected ceiling adjustments (where applicable).

  • Bathroom layout/elevations (as needed), fixture schedule, and finish selections.

  • Walk-in closet layout with built-in organization zones and specifications.

  • Procurement tracking list for long-lead items (cabinetry, appliances, plumbing fixtures, glass enclosure, specialty lighting).

  • Construction coordination set suitable for contractor pricing and permitting (scope-dependent).

Schedule*

  • Design Phase: 6–10 weeks (programming, layouts, finish + fixture selections, construction documentation).

  • Permitting: 2–6 weeks (jurisdiction dependent; may overlap with late design).

  • Construction: 8–14 weeks (demo through install; dependent on MEP complexity and lead times).

  • Final install + punch list: 1–3 weeks.

  • Total estimated project duration: 17–33 weeks.

*Note: Schedule is sensitive to permitting requirements, material lead times (cabinetry/appliances/glass), utility rerouting complexity, and homeowner decision cadence.

Budget Estimate

  • Remodel Cost: $100–$130 per sq. ft. (varies based on the extent of equipment selection and finishes selected).

  • Soft Costs: 15–20% (Architectural fees, structural engineering, and permits).

  • Owner Contingency: 10%-15% recommended for unknown conditions.

Assumptions and Constraints

  • No structural modifications and no relocation of major plumbing stacks or building risers.

  • MEP scope is limited to localized offsets, short connections, and capping of abandoned lines.

  • Final layout must respect multi-family constraints (existing exhaust paths, slab penetrations, sound transmission requirements).

  • Long-lead procurement (cabinetry, appliances, quartz, shower glass, select lighting) will govern sequencing and overall duration.

Details of new kitchen, main bathroom, and flooring.

Interior Elevations

Systems Engineering Plans

Preserving and restoring an existing apartment while integrating modern MEP (mechanical, electrical, plumbing) systems requires a careful balance between honoring original fabric and meeting current performance, safety, and code requirements. The process is inherently investigative and iterative: documenting existing conditions, diagnosing building pathologies, and developing discreet engineering solutions that enable rehabilitation without erasing the building’s historic character.

Design principles to guide decisions

  • Minimal intervention: Intervene no more than necessary to achieve function and safety.

  • Compatibility: New systems should be compatible in scale, finish, and placement with existing character.

  • Distinguishability: Make new work distinguishable on close inspection so future practitioners can read interventions, while keeping visual impact minimal.

  • Durability and maintainability: Choose systems and access that allow long-term maintenance without repeated invasive interventions.

  • Performance-led conservation: Use engineering analysis to inform conservation priorities rather than assumptions about condition or performance.

Deliverables for the project

  • MEP design drawings coordinated with architectural plans: plans, sections, schedules, riser diagrams, and details showing routing and penetrations.

  • Load calculations, equipment schedules, and schematic selections for electrical and plumbing systems.

  • Code review summary addressing life-safety and accessibility.

  • Specifications covering materials, installation methods, testing, and commissioning requirements.

Outcome

A well-coordinated MEP design supports the architectural goal of revitalizing the apartment: upgrading systems to provide comfort, safety, and efficiency while preserving the qualities that define the space. Through careful assessment, selection of minimally invasive solutions, and close coordination with architectural and conservation goals, the project can breathe new life into the structure.

01 Electrical plan that incorporates the new lighting, outlets upgrades and new equipment electrical requirements.

02 Plumbing plan with the integration of new fixtures and existing lines indication. Making sure there is code compliance.

03 Riser diagrams and penetrations details. These support the other plans and better communicate visual data.